Med en Hansgrohe køkkenvask har du et produkt med lang levetid og minimalistisk design som passer harmonisk ind i det moderne og funktionelle køkken.
Hansgrohe stålvaskene i rustfri stål er svejset i hånden og af høj kvalitet. Vaskene er fremstillet af 1 mm tykt rustfri stål hvilket er modstandsdygtigt, hygiejnisk og let at rengøre. For at sikre sig at køkkenarmaturet står stabilt er kanten forstærket med en afstivningsvinkel og dobbelt tykkelse ved hanehullet.
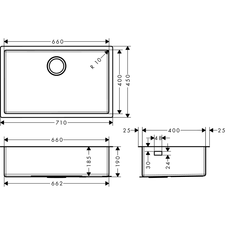
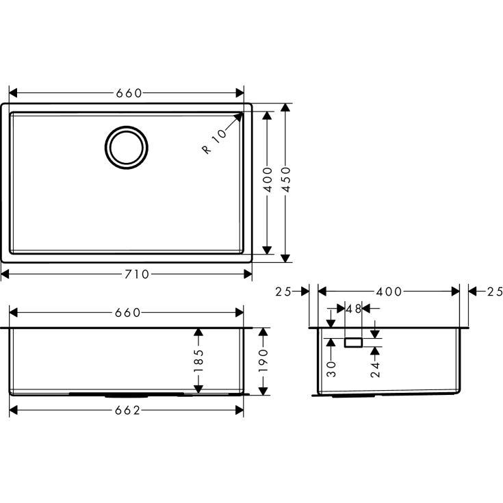
Af- og overløbssæt medfølger ikke vasken og skal købes for sig - se relaterede produkter.
- Udskæringsmål 65,8x39,8 cm
- Vaskens dybde 19 cm
- Overløb skal placeres i højre side af kummen



















