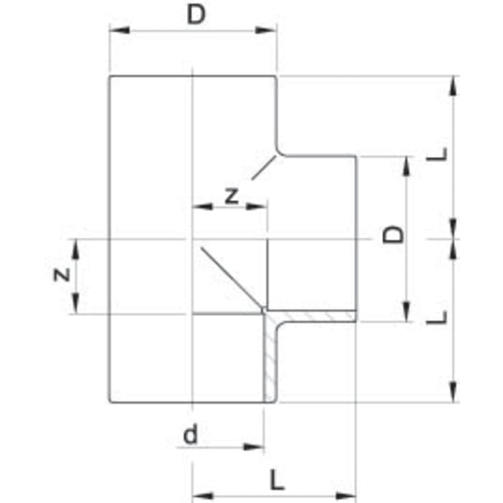
+GF+ tee, 90°, Ø50 mm, plast, grå

+GF+ tee, 90°, Ø50 mm, plast, grå

Varenummer: 061130050
Produktbeskrivelse

PVC trykrør og fittings til limning er velegnet til bortledelse af spildevand fra afløbsinstallationer i industrien, da de har høj kemikalie- og korrosionsresistens.

  • Til limning
  • Godkendt til tryk ved 10 bar

Vær opmærksom på, at PVC trykrør og fittings IKKE er godkendt til drikkevand.

Producent: GF (Georg Fischer)

Har du spørgsmål til dette produkt?
Specifikationer

Mærke

+GF+

Grad

90

Diameter

50 mm

Produceret i

Danmark

Leverandørens varenummer

721200110

EAN nummer

5704072775532

Varenummer

061130050

Kontaktinformation på leverandøren