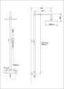
Komplet brusesæt i blank messing, med termostat der har skoldningssikring og indbygget omskifter.
Brusehovedet (Ø250 mm) er i metal som er højderegulerbart fra min. 71 cm. til max. 122 cm.
Flot designet håndbruser i fast position, som kan vippes frem og tilbage.
Gummidyser ved både hovedbruser og håndbruser der sikrer let rengøring mod kalk.
Inkl. rosetter og forskruninger.




