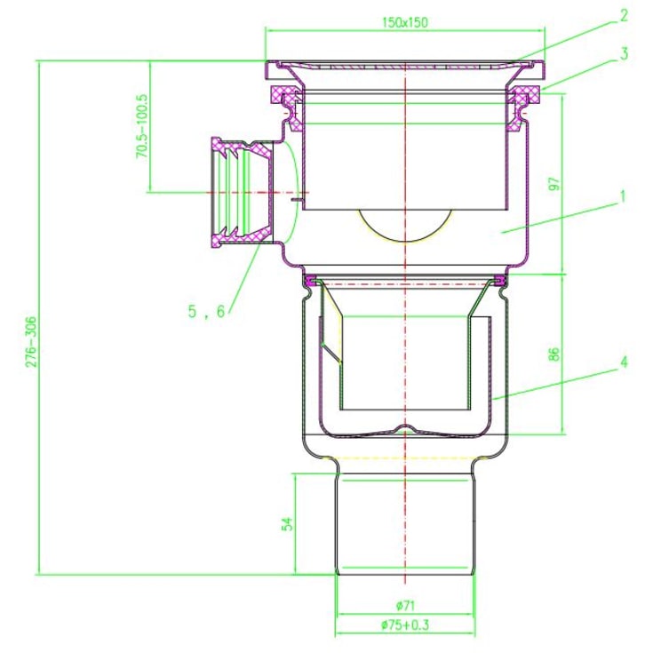
Serien EG150 boligafløb fra Aco Nordic er i rustfrit stål til beton og klinkegulve samt vinylgulve. Afløbene er konstrueret med henblik på enkel, sikker og økonomisk installation.
- Leveres med kvadratisk hulrist. Muligt at tilkøbe anden rist hvis du ønsker dette
- Højdejusterbar afløb 27,6-30,6 cm
- Med 3 sideindløb 32/40 mm - længde 35 mm
Bemærk: Vandlåsen medfølger ikke og skal købes for sig




